Plano de casa de 2 pisos con 5 dormitorios para terreno angosto

🏠 ¿Tiene un terreno angosto y está buscando un diseño que aproveche bien el espacio? Este plano de casa de 2 pisos con 5 dormitorios podría ser la inspiración que necesita. Con una superficie total aproximada de 120 m², este modelo ofrece funcionalidad y comodidad para toda la familia.
Además, puede descargar el plano en formato DWG y adaptarlo según sus propias necesidades y estilo.

🎥 Video resumen del diseño
En el siguiente video puede ver en detalle la distribución interior y cada una de las áreas que conforman este plano de casa:
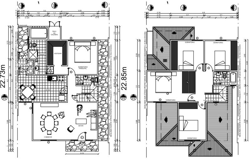
📋 Distribución del plano de casa

- 🧱 Primer piso:
- Amplia cocina
- Comedor y sala de estar
- Dormitorio principal con baño privado
- Medio baño y closet bajo escalera
- 🏡 Segundo piso:
- 4 dormitorios adicionales, todos cómodos
- Baño compartido

📥 Descargar el plano en DWG
Puede obtener este diseño completo en formato DWG (AutoCAD) para modificarlo o utilizarlo como base para su proyecto. Haga clic en el siguiente botón para descargarlo:
💬 ¿Qué le parece este diseño?
Nos encantaría conocer su opinión. ¿Le gustó este plano de casa para sitio angosto? ¿Qué cambiaría o mejoraría?
Puede dejar su comentario más abajo. ¡Gracias por visitar verplanos.com! 😊
Posts relacionados
Plano de casa de 55 m² (7×9) con 2 dormitorios – DWG y PDF ¡Gratis!
¿Está buscando una casa económica, compacta y funcional que se adapte a terrenos pequeños? Entonces este modelo de vivienda de … VER MÁS
Ver plano →Plano de casa económica y bonita de 3 dormitorios en 1 piso para descargar gratis
¿Está buscando una casa económica, funcional y con espacio suficiente para una familia pequeña? Entonces este modelo de vivienda de … VER MÁS
Ver plano →Casa de 7×7 metros con 2 dormitorios: ¡Bonita, funcional y económica!
¿Está buscando una casa bonita, económica y funcional que aproveche muy bien cada metro cuadrado? Entonces este plano de casa … VER MÁS
Ver plano →

