Plano de casa de campo de 2 pisos y 3 dormitorios

🏡 Si está buscando un diseño acogedor para una vivienda de campo, este plano de casa de 2 pisos y 3 dormitorios puede servirle de gran inspiración. Con un estilo colonial y distribución funcional, esta casa ofrece confort, amplitud y versatilidad para toda la familia.
El archivo incluye los planos en formato DWG y PDF para que pueda adaptarlos a sus propias necesidades y construir su hogar soñado.

🎥 Video explicativo del diseño
En este video puede ver un resumen visual del plano de esta casa de campo. ¡Le ayudará a entender mejor su distribución!
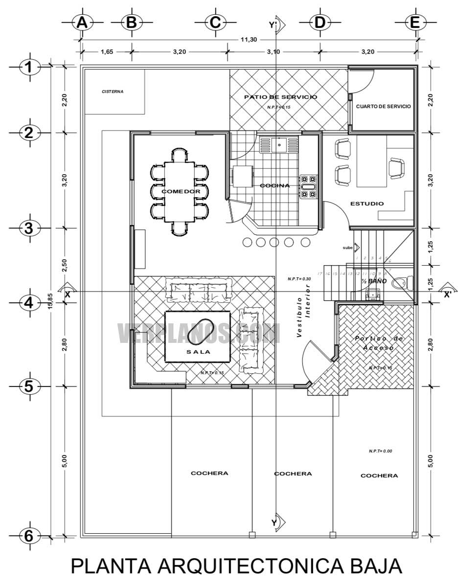
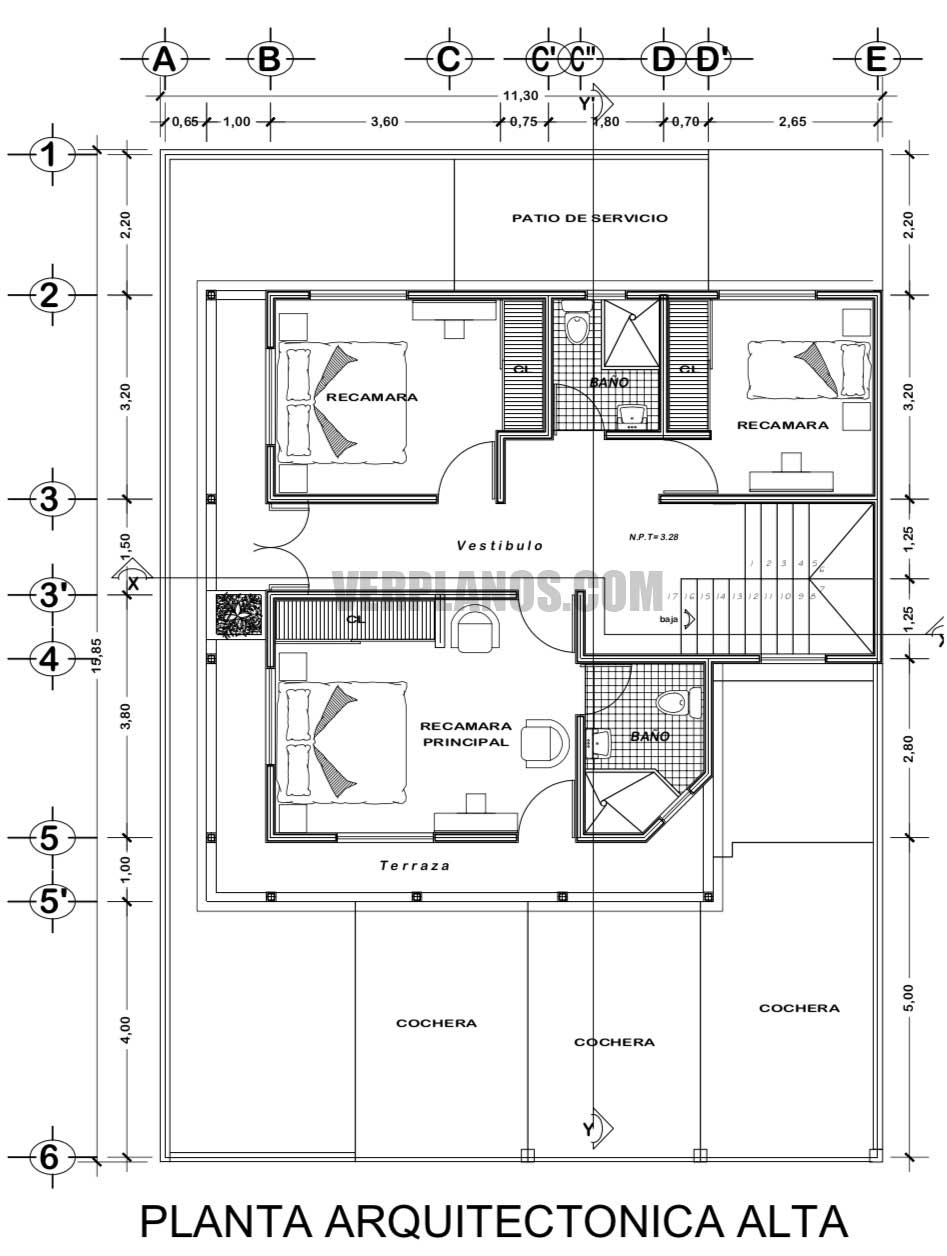
📐 Características del plano de casa
- 🏠 Estilo: Colonial moderno
- 🛏 Dormitorios: 3 + 1 estudio convertible
- 🛁 Baños: 3 en total (1 en planta baja, 2 en planta alta)
- 🍽 Ambientes comunes: Cocina, comedor, sala de estar
- 🔧 Extras: Patio y habitación de servicio, baño bajo escalera
La distribución separa correctamente las zonas privadas de las sociales, lo que garantiza privacidad y confort. El estudio puede transformarse fácilmente en un cuarto dormitorio adicional.
📥 Descargar este plano de casa
Puede descargar este modelo en formato DWG o PDF para adaptarlo a su propio proyecto de vivienda. Haga clic en el botón a continuación para obtener el archivo:
🖼 Vistas previas del plano



💬 ¿Qué le parece este diseño?
Nos encantaría saber su opinión. Puede dejar su comentario más abajo. ¿Le gustó este plano? ¿Le haría alguna mejora?
Gracias por visitar verplanos.com ✨
Posts relacionados
Plano de casa de 55 m² (7×9) con 2 dormitorios – DWG y PDF ¡Gratis!
¿Está buscando una casa económica, compacta y funcional que se adapte a terrenos pequeños? Entonces este modelo de vivienda de … VER MÁS
Ver plano →Plano de casa económica y bonita de 3 dormitorios en 1 piso para descargar gratis
¿Está buscando una casa económica, funcional y con espacio suficiente para una familia pequeña? Entonces este modelo de vivienda de … VER MÁS
Ver plano →Casa de 7×7 metros con 2 dormitorios: ¡Bonita, funcional y económica!
¿Está buscando una casa bonita, económica y funcional que aproveche muy bien cada metro cuadrado? Entonces este plano de casa … VER MÁS
Ver plano →

