Plano de casa moderna de 2 pisos y 3 dormitorios con medidas

¡Hola! El día de hoy me gustaría compartir contigo un plano de casa moderno con medidas en formato DWG compatible con AutoCAD versión 2010.
Para que ojalá este plano de casa moderna en Autocad con Medidas te sirva de inspiración para tu propio proyecto o idea de casa que quieras construir.
El siguiente plano de casa es bastante grande y moderno, cuenta con varios ambientes y espacios.

¡Vamos a ver más detalles de este plano de casa a continuación!
🏡 Plano de casa moderna de 3 dormitorios.
En este video de hoy vas a poder ver un resumen de este plano de casa en Autocad con Medidas, no te lo pierdas, además no olvides SUSCRIBIRTE al Canal de Youtube.
✚ Nota: No olvides suscribirte al canal para recibir todos los planos de casas que voy publicando. 😉
⬇︎ Descargar este plano de casa.
Para descargar este plano de casa usted lo puede hacer desde el siguiente enlace, pero antes debe compartir en Facebook o Twitter usando los siguientes botones para desbloquear el enlace. ¡Muchas gracias! 😊
📝 Más detalles de este plano de casa.
El plano de casa que comparto el día de hoy con ustedes es un diseño bastante grande y moderno.
Tiene más de 200 metros cuadrados habitables y es perfecta para una casa de una familia «numerosa» de 5 o 6 personas.
Tiene en su interior varios y espacios y destaca por la arquitectura moderna de su fachada, veamos una vista previa de su fachada.
⭐️ Vista previa de sus fachadas y plantas.
En esta foto usted puede ver una vista previa de su fachada de este plano de casa en AutoCAD con medidas.

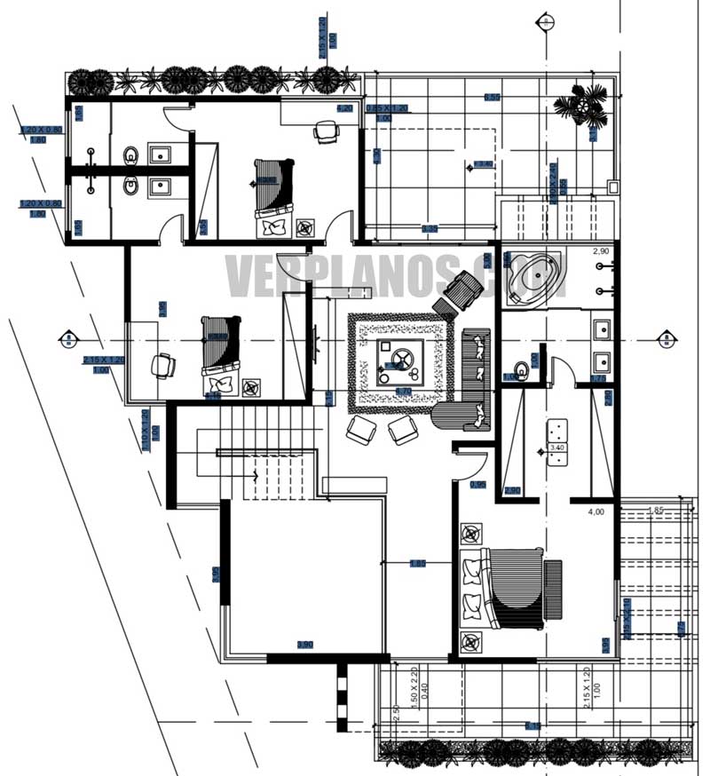
En esta siguiente fotografía usted puede ver una vista previa del primer piso de este plano de casa.

Y por último podemos ver una vista previa del plano de casa del segundo nivel o piso.

Como podemos ver se trata de un plano de casa a parte de moderno súper grande en sus espacios y generoso en los ambientes privados de los dormitorios, los cuales cuentan con cuarto de baño particulares cada uno de ellos.
🤔 ¿Te gusta este plano de casa?
Cuéntame en los comentarios que te pareció este plano o diseño de casa.
¡Muchas gracias por visitar verplanos.com!
Posts relacionados
Plano de casa de 55 m² (7×9) con 2 dormitorios – DWG y PDF ¡Gratis!
¿Está buscando una casa económica, compacta y funcional que se adapte a terrenos pequeños? Entonces este modelo de vivienda de … VER MÁS
Ver plano →Plano de casa económica y bonita de 3 dormitorios en 1 piso para descargar gratis
¿Está buscando una casa económica, funcional y con espacio suficiente para una familia pequeña? Entonces este modelo de vivienda de … VER MÁS
Ver plano →Casa de 7×7 metros con 2 dormitorios: ¡Bonita, funcional y económica!
¿Está buscando una casa bonita, económica y funcional que aproveche muy bien cada metro cuadrado? Entonces este plano de casa … VER MÁS
Ver plano →

