Descargar plano de casa social 70m2 y 2 pisos

Si usted necesita un plano de casa social, bajo costo pero para una familia numerosa, este es el plano de casa que necesita.
El siguiente plano de casa es un plano de vivienda social desarrollada y pensada para ser habitada por una familia numerosa.
Considerando que una familia de 5 integrantes pueden vivir cómodamente en esta vivienda social, usted puede ver el plano a continuación.

Plano de casa social de 70m2.
Aproximadamente, esta vivienda cuenta con un total de 70 metros cuadrados habitables.
Los cuales están distribuidos de la siguiente manera. Primer piso: zonas comunes, segundo piso: dormitorios.
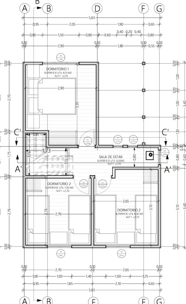
Es un diseño o plano de casa acogedor, cuenta con 3 dormitorios amplios y cómodos, espacios comunes bien pensados y distribuidos.
Aquí podemos ver el plano del primer piso:

Y en esta captura podemos ver el segundo piso:

Descargar plano de vivienda social 70m2.
¿Qué le parece este plano de casa?
Recuerde que más abajo hay una caja de comentarios donde puede dejar su opinión al respecto si usted gusta.
Gracias por visitar verplanos.com, nos leemos en el próximo artículo! 😉
Posts relacionados
Plano de casa de 55 m² (7×9) con 2 dormitorios – DWG y PDF ¡Gratis!
¿Está buscando una casa económica, compacta y funcional que se adapte a terrenos pequeños? Entonces este modelo de vivienda de … VER MÁS
Ver plano →Plano de casa económica y bonita de 3 dormitorios en 1 piso para descargar gratis
¿Está buscando una casa económica, funcional y con espacio suficiente para una familia pequeña? Entonces este modelo de vivienda de … VER MÁS
Ver plano →Casa de 7×7 metros con 2 dormitorios: ¡Bonita, funcional y económica!
¿Está buscando una casa bonita, económica y funcional que aproveche muy bien cada metro cuadrado? Entonces este plano de casa … VER MÁS
Ver plano →

