Plano de casa para sitio angosto de 6 x 20 metros con medidas en AutoCAD

¡Hola! El día de hoy me gustaría compartir contigo un plano de casa para sitio angosto.
Es un plano de casa especial para un terreno angosto de ciudad o de metrajes cuadrados reducidos.
Ya que las medidas generales de este plano de casa son de 6 metros de ancho o frente por 20 metros de largo o profundidad.

¡Vamos a ver más detalles de este plano de casa para sitio angosto a continuación!
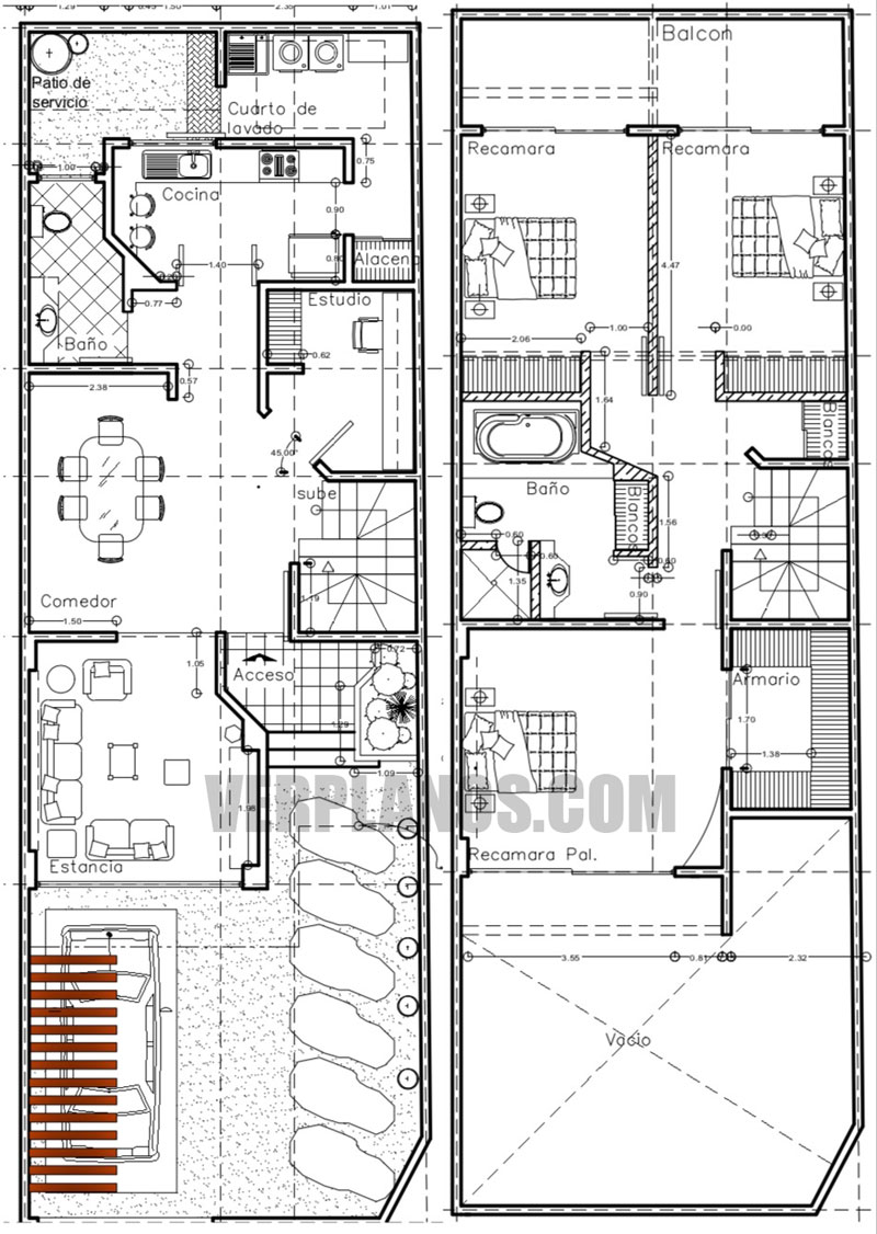
Plano de casa para sitio angosto.
En este video usted puede ver el plano de casa que le comparto el día de hoy además de escuchar una breve descripción.
¡No se lo pierda, mire este video!
✚ Nota: No olvides suscribirte al canal para recibir todos los planos de casas que voy publicando. 😉
Otros aspectos de este plano de casa.
El plano de casa del día de hoy es especial para un sitio angosto como lo sería un terreno en la ciudad, donde los metros cuadrados de terreno son elevados.
Cuenta con unas medidas generales de 6,90 metros de frente por 20 metros de largo, especial para sitio angosto.
Está desarrollado en dos niveles y también permite la ocupación de su azotea para un mejor uso de los espacios.
En total, este plano de casa cuenta con tres dormitorios, dos cuartos de baños, sala de estudio, comedor, estacionamiento, hall de acceso, patio de servicio y lavandería.
Vistas previas de sus plantas y fachada.
Veamos una vista previa de su primer piso y acompañado de la planta superior, segundo piso de este plano de casa para terreno angosto.

Además aquí podemos ver una vista previa de la fachada de este plano de casa para sitio angosto.

Como ve, es un proyecto de bonita fachada y óptima distribución, perfecto para un terreno angosto de ciudad o de otras circunstancias.
⬇︎ Descargar este plano de casa.
Para descargar este plano de casa usted lo puede hacer desde el siguiente enlace.¡Muchas gracias! 😊
El formato es AutoCAD 2010 y el archivo tiene extensión .DWG
ℹ️ ¿Qué opinas o qué le parece este plano de casa?
Como siempre, le recuerdo que más abajo en la caja de comentarios puede dejar su opinión sobre este plano de casa.
¡Muchas gracias por visitar verplanos.com!
Posts relacionados
Plano de casa de 55 m² (7×9) con 2 dormitorios – DWG y PDF ¡Gratis!
¿Está buscando una casa económica, compacta y funcional que se adapte a terrenos pequeños? Entonces este modelo de vivienda de … VER MÁS
Ver plano →Plano de casa económica y bonita de 3 dormitorios en 1 piso para descargar gratis
¿Está buscando una casa económica, funcional y con espacio suficiente para una familia pequeña? Entonces este modelo de vivienda de … VER MÁS
Ver plano →Casa de 7×7 metros con 2 dormitorios: ¡Bonita, funcional y económica!
¿Está buscando una casa bonita, económica y funcional que aproveche muy bien cada metro cuadrado? Entonces este plano de casa … VER MÁS
Ver plano →

