Económico Plano de Casa de 3 dormitorios y 2 Baños (Con Medidas)

Buenas mis amigos y amigas, esta vez me gustaría compartir con usted un hermoso y económico plano de casa.
Se trata de un diseño de plano muy eficiente en cuanto al aprovechamiento de los espacios interiores y el área en general.
Es un plano de casa con medidas generales de 7 metros de frente por 12 metros de largo.

Pero mejor… ¡Vamos a ver más detalles de este plano de casa a continuación!
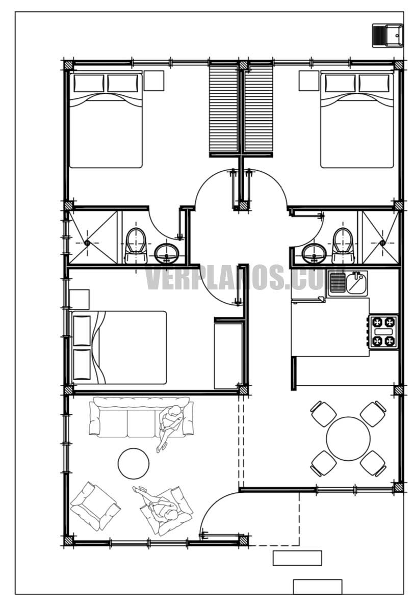
🏡 Plano de casa económico con medidas.
Este video a continuación muestra en detalle este plano de casa y además la descripción del mismo.
✚ Nota I: No olvides suscribirte al canal para recibir todos los planos de casas que voy publicando. 😉
✚ Nota II: Recuerde que es un plano de casa orientativo, si necesita construirlo, contacte con un especialista. ✅
📝 Diseño de casa económica.
En resumen, este plano de casa es especial para alguien que necesite construir su vivienda con un presupuesto ajustado.
Es una idea muy bonita y especial en cuanto a su distribución de los espacios interiores.
Lo que yo cambiaría sería la cubierta, no me gustó mucho como quedó, pero lo bueno es que este plano de casa es orientativo, usted verá cómo lo adapta a su idea.
📸 Vista previa de su fachada y plano de casa.
En esta imagen usted puede ver una vista previa de su fachada.

Y a continuación usted puede ver una vista en planta resumida de los espacios interiores de esta vivienda.

Como le mencionaba, es un plano simple pero eficiente, bastante bonito en su fachada y funcional en su distribución de espacios.
📚 Descargar este plano.
😉 Para descargar este plano de casa con medidas y en autocad lo puede hacer desde el siguiente enlace.
El formato es AutoCAD 2007 y el archivo tiene extensión .DWG
También está en PDF Para que usted pueda hacer una vista previa de este plano de casa.
💡 ¿Qué le parece este plano de casa?
Como siempre, le recuerdo que más abajo en la caja de comentarios puede dejar su opinión sobre este plano de casa.
¡Muchas gracias por visitar verplanos.com! 😉
Posts relacionados
Plano de casa de 55 m² (7×9) con 2 dormitorios – DWG y PDF ¡Gratis!
¿Está buscando una casa económica, compacta y funcional que se adapte a terrenos pequeños? Entonces este modelo de vivienda de … VER MÁS
Ver plano →Plano de casa económica y bonita de 3 dormitorios en 1 piso para descargar gratis
¿Está buscando una casa económica, funcional y con espacio suficiente para una familia pequeña? Entonces este modelo de vivienda de … VER MÁS
Ver plano →Casa de 7×7 metros con 2 dormitorios: ¡Bonita, funcional y económica!
¿Está buscando una casa bonita, económica y funcional que aproveche muy bien cada metro cuadrado? Entonces este plano de casa … VER MÁS
Ver plano →


