Plano de casa de 1 piso con 2 dormitorios en AutoCAD con Medidas

¡Hola! El dia de hoy me gustaría compartir con usted este plano de casa o diseño de vivienda que me pareció llamativo.
Me pareció un bonito plano de casa de 1 piso con medidas y que tiene claros estilos del desierto oriental.
Usted puede seguir o no los diseños de su fachada o quizás quedarse solamente con la distribución de sus espacios.
En definitiva, es un hermoso plano de casa que espero le sirva de inspiración para su propio proyecto.

¡Vamos a ver más detalles de este plano de casa!
🏡 Plano de casa de 8 x 14 metros.
En este video usted puede ver un detalle y comentario de este plano de casa antes de que lo descargue. No se pierda el video.
✚ Nota: No olvides suscribirte al canal para recibir todos los planos de casas que voy publicando. 😉
📚 Comentario sobre este plano de casa.
A mi parecer, se trata de un bonito diseño de casa, tanto en su fachada como en la distribución de sus espacios.
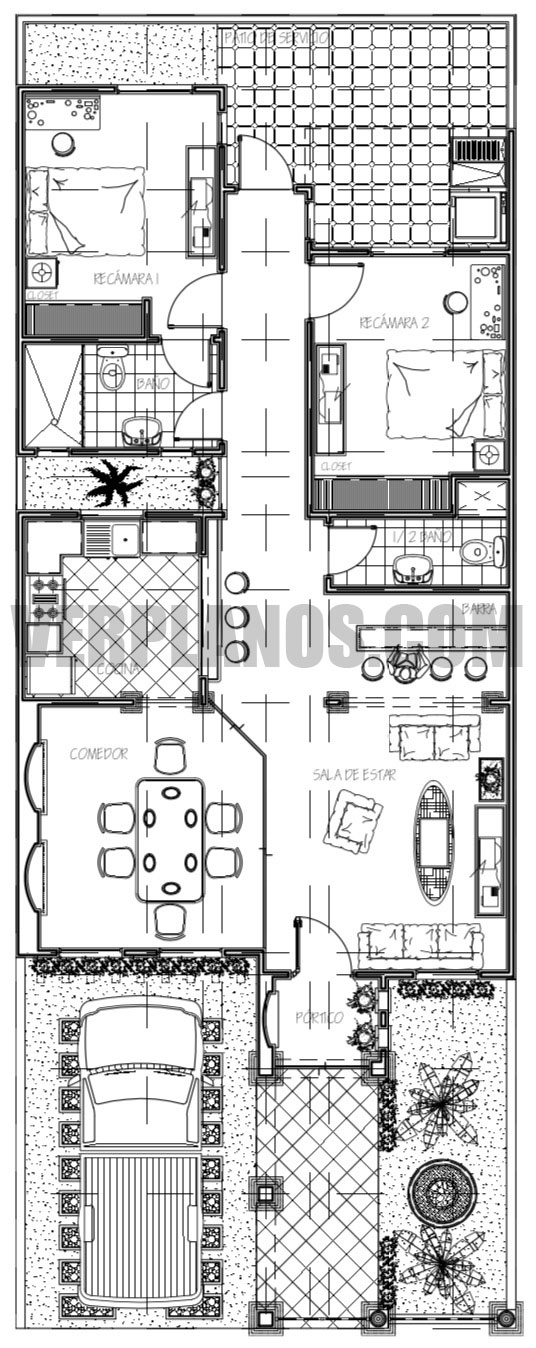
Podemos ver que en su interior cuenta con un cuarto de baño y medio, el baño completo tiene doble acceso.
Un acceso desde el dormitorio principal, y otro desde el pasillo que conecta la casa con el patio trasero.
En total tenemos dos dormitorios, una cocina abierta con desayunador y una zona de bar o barra.
Además del comedor y la sala en el mismo ambiente.
Veamos una vista previa de su vista en planta y fachada.
📸 Vista previa de la planta y fachada.
En esta imagen usted puede ver una vista previa de su fachada.

Y en esta imagen usted puede ver su distribución de los espacios interiores en una vista previa.

Como podemos ver, tiene una llamativa fachada, ¿Cierto?
⬇︎ Descargar este plano.
😉 Para descargar este plano de casa lo puede hacer desde el siguiente enlace.
El formato es AutoCAD 2007 y el archivo tiene extensión .DWG
También está en PDF Para que usted pueda hacer una vista previa de este plano de casa.
ℹ️ ¿Qué le parece este plano de casa?
Como siempre, le recuerdo que más abajo en la caja de comentarios puede dejar su opinión sobre este plano de casa.
¡Muchas gracias por visitar verplanos.com! 😉
Posts relacionados
Plano de casa de 55 m² (7×9) con 2 dormitorios – DWG y PDF ¡Gratis!
¿Está buscando una casa económica, compacta y funcional que se adapte a terrenos pequeños? Entonces este modelo de vivienda de … VER MÁS
Ver plano →Plano de casa económica y bonita de 3 dormitorios en 1 piso para descargar gratis
¿Está buscando una casa económica, funcional y con espacio suficiente para una familia pequeña? Entonces este modelo de vivienda de … VER MÁS
Ver plano →Casa de 7×7 metros con 2 dormitorios: ¡Bonita, funcional y económica!
¿Está buscando una casa bonita, económica y funcional que aproveche muy bien cada metro cuadrado? Entonces este plano de casa … VER MÁS
Ver plano →


