Descargar: Plano de casa social de 62m2 y 3 dormitorios

El particular plano de casa a continuación, es un diseño bastante curioso y especial.
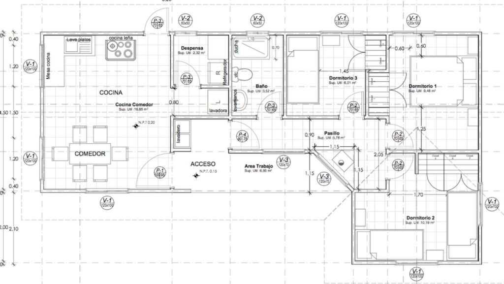
Se trata de un plano de casa social, desarrollado en un nivel, especial para sitio angosto.
Lo que hace especial este plano de casa es que cuenta con una sección que divide los dormitorios del resto de la vivienda.
Esta particularidad no logro explicarla, pero se soluciona cuando se realiza la ampliación proyectada.

Plano de casa social de 62 m2.
Este plano de casa cuenta con un total aproximado de 62 metros cuadrados habitables.
Tiene sólo desarrollo en un solo nivel, y cuenta con tres amplios dormitorios, muy cómodos.
Su comedor y sala de estar, también bastante espaciosos.
Acá podemos ver el plano de esta casa:

Descargar este plano de vivienda social:
Para descargar este plano de casa usted puede hacerlo desde el siguiente enlace:
¿Qué le parece este plano de casa?
No olvide dejar su opinión más abajo en la caja de comentarios, gracias por visitar verplanos.com!
Nos leemos en el próximo artículo. 😉
Posts relacionados
Plano de casa de 55 m² (7×9) con 2 dormitorios – DWG y PDF ¡Gratis!
¿Está buscando una casa económica, compacta y funcional que se adapte a terrenos pequeños? Entonces este modelo de vivienda de 55 metros cuadrados habitables puede ser justo lo que necesita. Con un diseño muy bien pensado, esta casa ofrece 2 dormitorios, 1 baño, cocina y comedor integrados, además de una salida lateral ideal para proyectar … Leer más
Ver plano →Plano de casa económica y bonita de 3 dormitorios en 1 piso para descargar gratis
¿Está buscando una casa económica, funcional y con espacio suficiente para una familia pequeña? Entonces este modelo de vivienda de 3 dormitorios y 1 baño en un solo piso puede ser justo lo que necesita. Se trata de un diseño compacto pero muy completo, ideal para construir en zonas urbanas o rurales, y que se … Leer más
Ver plano →Casa de 7×7 metros con 2 dormitorios: ¡Bonita, funcional y económica!
¿Está buscando una casa bonita, económica y funcional que aproveche muy bien cada metro cuadrado? Entonces este plano de casa de aproximadamente 7×7 metros habitables le puede interesar mucho. Este modelo combina comodidad, eficiencia y diseño en un formato compacto ideal para construir como vivienda principal, segunda casa o incluso una cabaña para arriendo. Y … Leer más
Ver plano →

