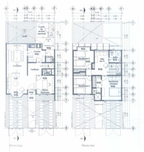
Vivienda de 2 pisos con 3 dormitorios y un total de 71m2
El siguiente plano de casa es una vivienda de acceso medio o bajo, es una casa de linea estándar, una casa con carácter social. Decir que se trata de un plano de casa social no quiere decir que sea un plano menos logrado o de menor calidad. Para nada, el siguiente plano de casa cuenta … Leer más
Ver plano →








